Inicio
Nosotros
Servicios
Obras
Novedades
Contacto
Ferra Constructora | Obras | Vivienda "Boma"
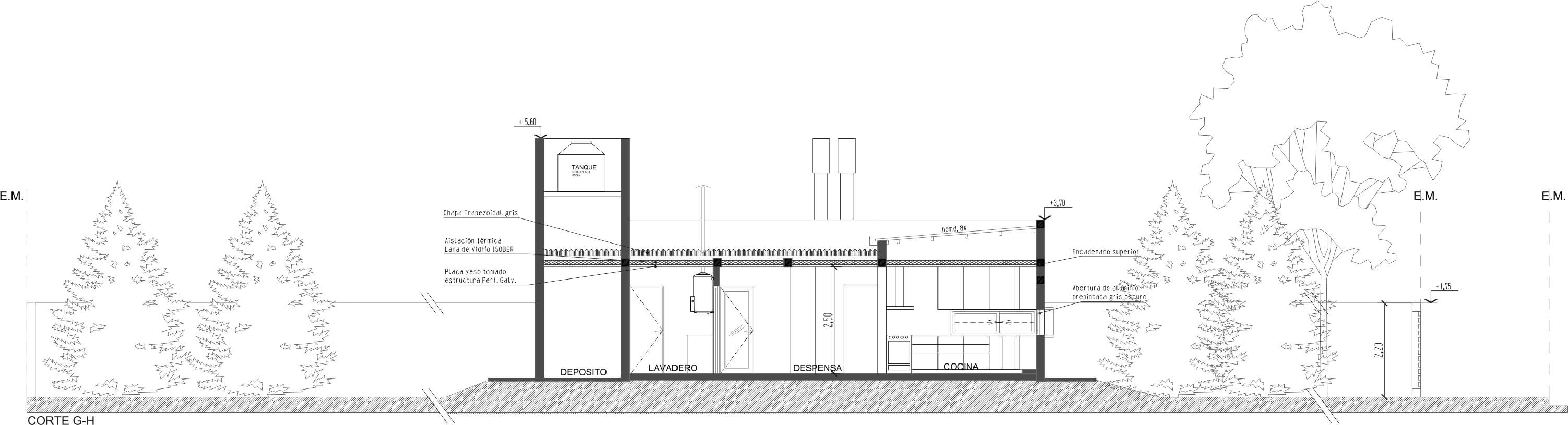
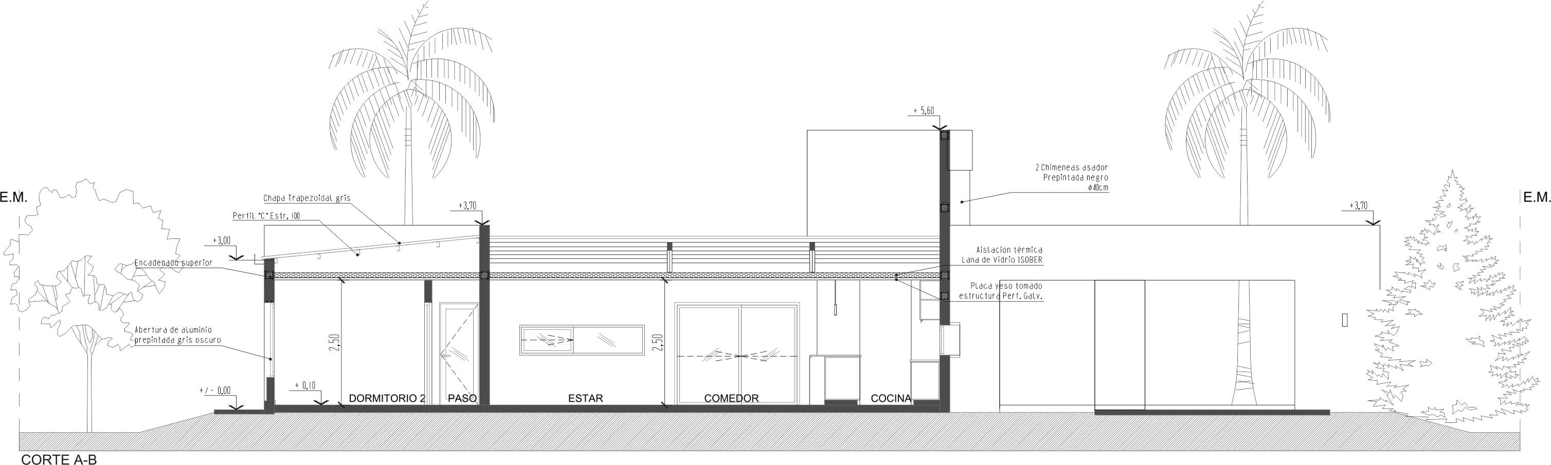
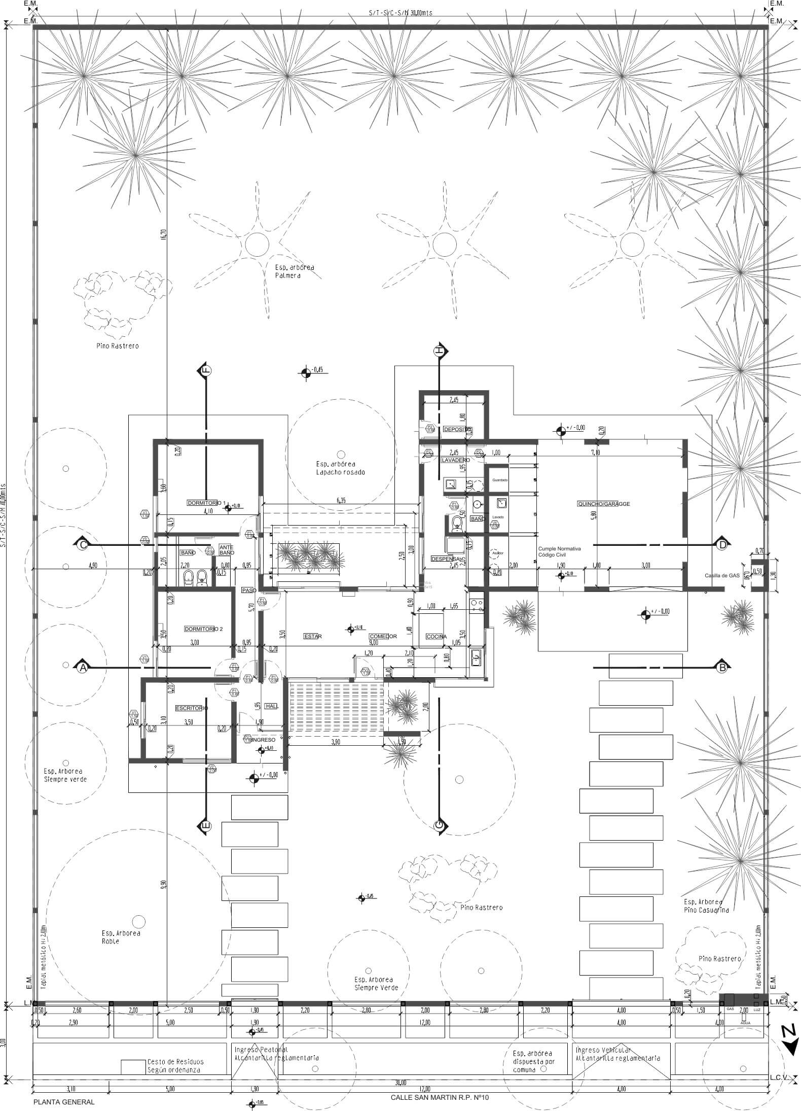
Planos Vivienda Boma
Volver a Ficha Técnica
Desarrollado por