Inicio
Nosotros
Servicios
Obras
Novedades
Contacto
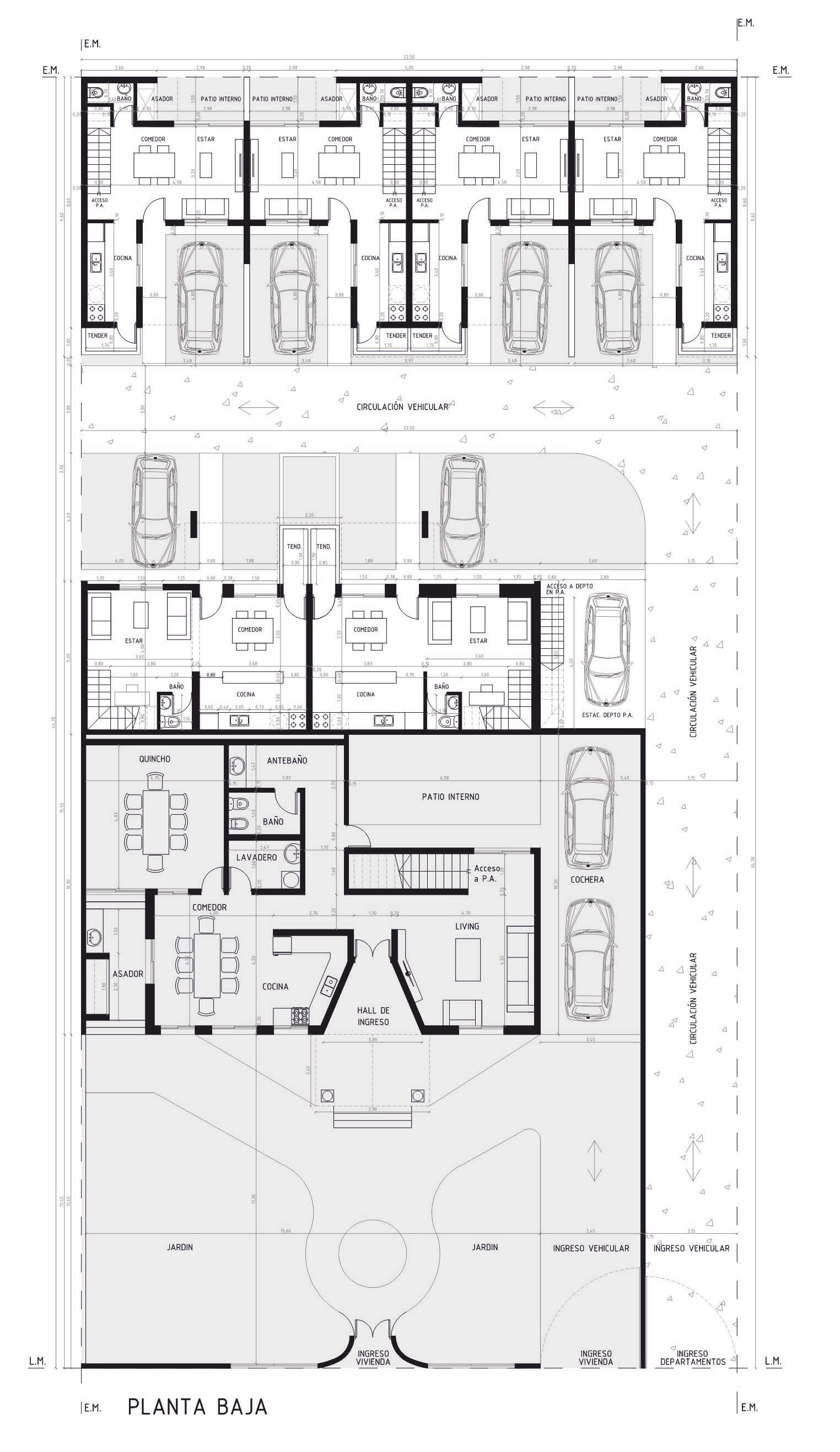
Ferra Constructora | Obras | Complejo Habitacional
Planos Complejo Habitacional
Volver a Ficha Técnica
Desarrollado por