Inicio
Nosotros
Servicios
Obras
Novedades
Contacto
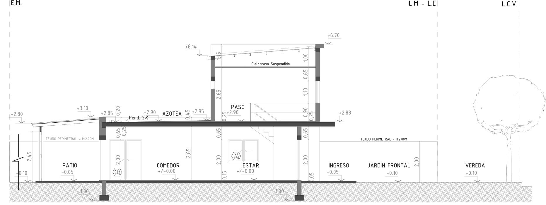
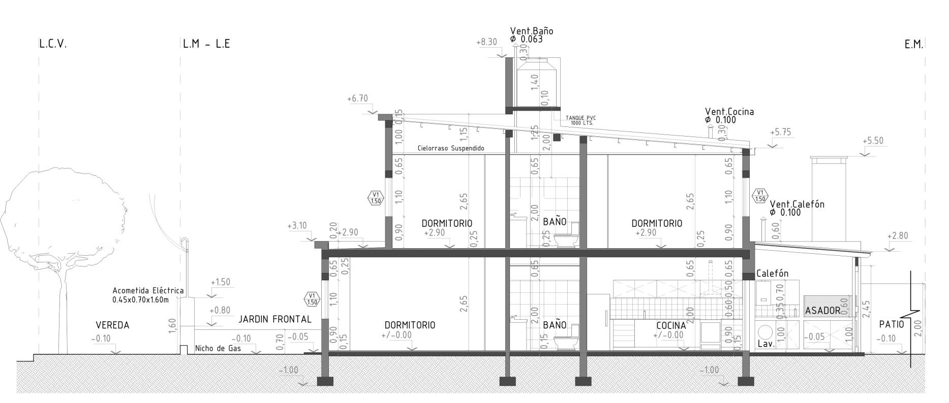
Ferra Constructora | Obras | Vivienda "Concordia"
Planos Vivienda Concordia
Volver a Ficha Técnica
Desarrollado por