Inicio
Nosotros
Servicios
Obras
Novedades
Contacto
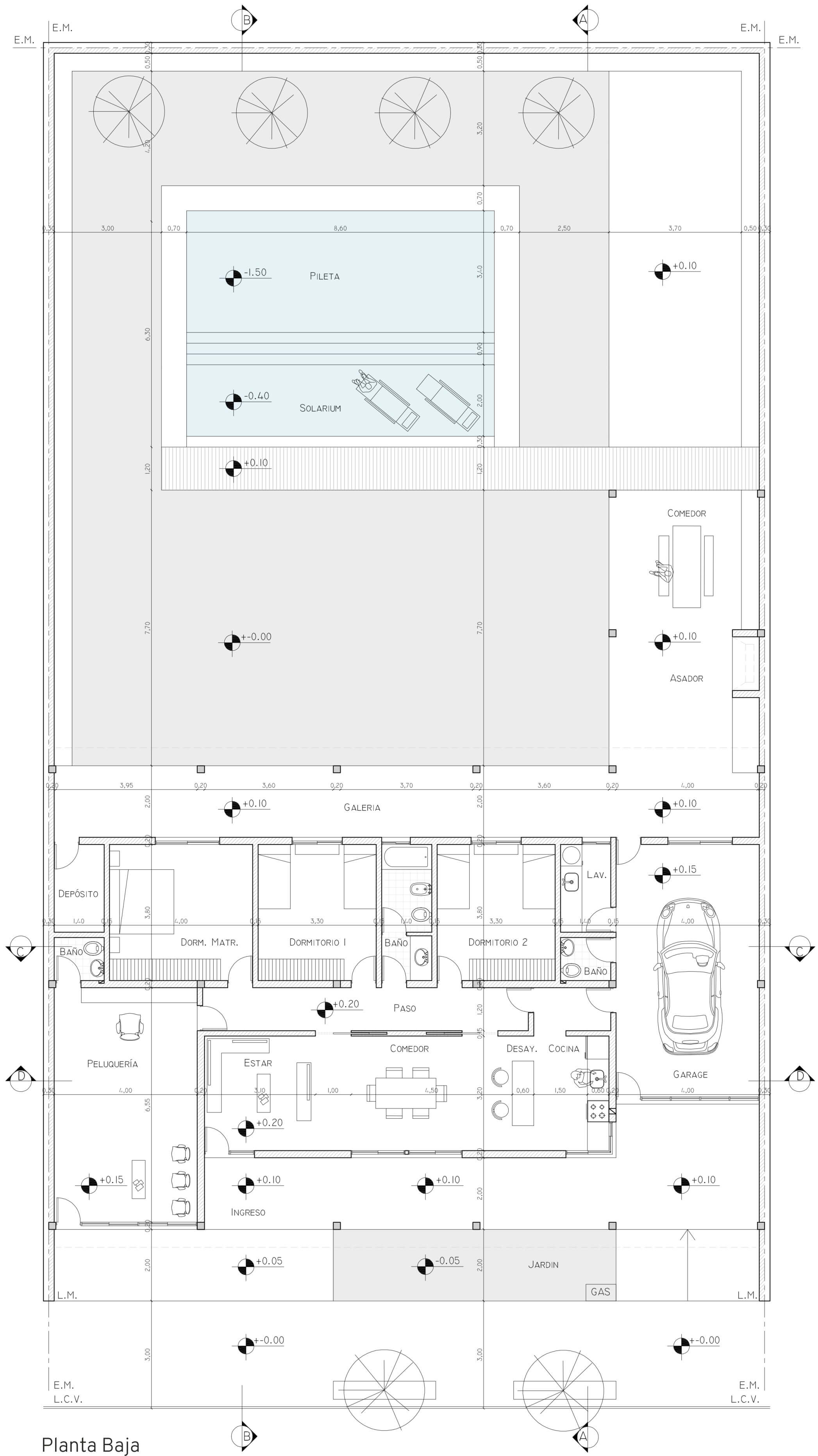
Ferra Constructora | Obras | Vivienda "Luiggi"
Planos Vivienda "Luiggi"
Volver a Ficha Técnica
Desarrollado por